Tökéletes telephely, a legjobb helyen!

5723 Nyomtatás Ajánlás Facebook

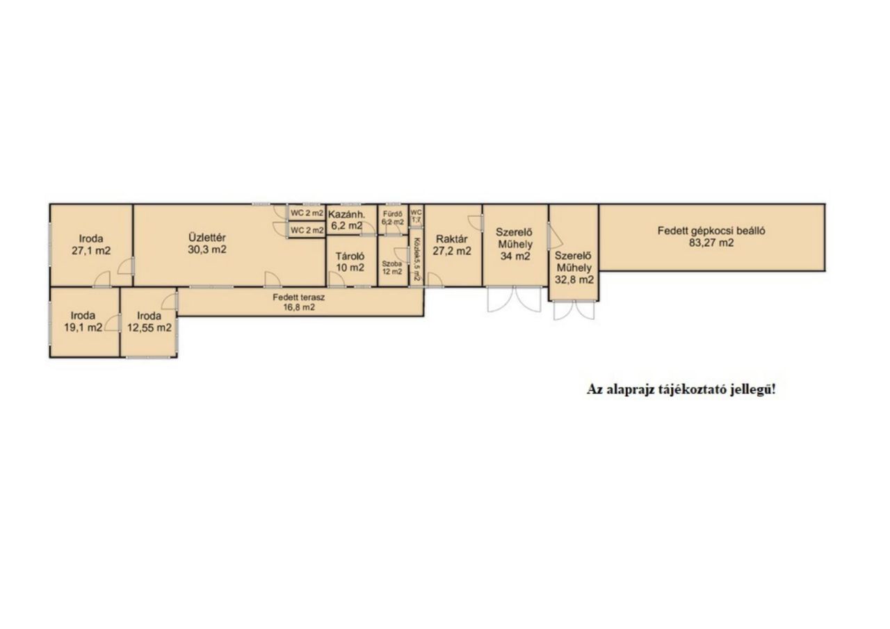
Eladóvá vált Gyula fürdővárosában az Újvári városrészen található telephely és ipari létesítmény. Az épület eredeti része a 60-as években épült kifogástalan szerkezeti állapotú, vegyes falazatú, amelyet 2004 évben teljes körűen felújítottak és bővítettek. A felújítás során a régi épületrész korszerűsítése mellett egy igazi ipari komplexummá lett kibővítve. Az épületben ki lett alakítva több iroda, raktár, szerelő műhely, korszerű mosdók és fürdőszoba, illetve egy tágas üzletrész konyhasarokkal. A felújítás során cserélve lettek a nyílászárók, vízvezetékek és a teljes tetőszerkezet. Az elektromos hálózat fejlesztése is megtörtént (3x16 A, ipari áram). Az épület fűtéséről egy Wiessmann gázkazán és egy vegyes tüzelésű kazán gondoskodik, amelyekhez új lapradiátorok tartoznak. Az ingatlan hűtését több klímaberendezés szolgálja. A homlokzati hőszigetelés is megtörtént.
A telephelyet egy elektromos kapun keresztül lehet megközelíteni, amely pontosan egy főút mellett található, ezért a teherforgalom számára is könnyen megközelíthető, de mivel a városban helyezkedik el, ezért a vásárlók számára is tökéletes.
A telephely udvarának kialakítása is tökéletesen alkalmas nagyobb tehergépkocsik behajtására, parkolására, rakodására.
A telephely, mivel jelenleg is üzemel, ezért az összes irattal és engedéllyel rendelkezik, amelyek egy telephely üzemeltetéséhez szükségesek.
Az épület összterülete: 238 m2
Telek területe: 2159 m2
Fedett gépkocsibeálló: 83 m2
Az ingatlan per-teher mentes és 1/1 cég tulajdonban van, ezért az ár áfával együtt lett feltűntetve!
Amennyiben ez a kiváló helyen lévő telephely, irodaház felkeltette érdeklődését hívjon bizalommal a 06/70 457-4392-es telefonszámon a hét bármely napján.

Szentléleki Tamás
PRÉMIUM

Szentléleki Tamás

6 éve a Városi Ingatlaniroda tagja
Ingatlanértékesítő
Gyula
+36 (70) 457 4392
Észrevétel a hirdetéssel kapcsolatban
Egy ingatlanos naplója