Modern, belső kétszintes családi ház remek panorámával!

1582 Nyomtatás Ajánlás Facebook

Budapest II. kerületében, Máriaremete csendes, nyugodt utcájában ajánlom figyelmébe ezt a remek adottságokkal rendelkező kétszintes családi házat.
Egy gyönyörűen parkosított, 713 m²-es telken található ez a 2020-ban épült 180 m² lakótérrel rendelkező, megjelenésében rögtön magával ragadó ingatlan. Színvonalas kivitelezés, magas műszaki tartalom, tágas terek, intim kert, környezettudatosság és energiatakarékosság jellemzi a házat.
És ez még nem minden!
Ritka az olyan ingatlan, ahol az anyagok kiválasztására és a kivitelezés minőségére ennyire odafigyeltek volna.
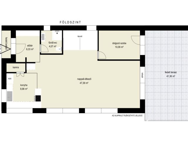
A ház fiatal, újszerű állapotban van, prémium anyagok felhasználásával készült. A belső kétszintes ingatlan elrendezése jól átgondolt, könnyen élhető, jól átszellőztethető. Az alaprajzot a fotók között megtalálja!
Elosztása szerint:
A földszinten nappali-konyha-étkező, kamra, 1 szoba, -mely akár hálószoba, vendégszoba, vagy dolgozószoba is lehet-, valamint egy zuhanyzós-wc-s fürdőszoba kapott helyet az előtér mellett.
Az emeletre kényelmes lépcső vezet fel, ahol 3 hálószoba található panorámás kilátással, egy háztartási helyiség, valamint két zuhanyzós fürdőszoba, mindkettőben wc és bidé is rendelkezésre áll. Az egyik szoba a saját fürdő mellé egy klassz gardróbot és egy közel 6m2-es remek kilátással bíró erkélyt is kapott, mely ideális szülői hálószobának.

Az ingatlan műszakilag is kiemelkedő:
- főfalak: 30-as Porotherm okostégla, 15cm-es dryvit hőszigeteléssel
- monolit vasbetonfödém, lapostetős kialakítás
- NGBS épületautomatika: padlófűtés, plafonhűtés, szobánként külön termosztát
- Daikin hőszivattyús rendszer
- 3 rétegű hő,-és hangszigetelt nyílászárók elektromos redőnyökkel
- 11 KW-os napelemrendszer a fenntarthatósághoz (szaldós elszámolású)
- vízlágyító berendezés
- Miele konyhagépek
- riasztórendszer
- automata öntözőrendszer
- automata robotfűnyíró
- 6 személyes HotSpring jacuzzi a kertben
- elektromos kapu
- 2 autó számára kialakított, fedett felszíni beálló: Brustor lamellás pergolával, elektromos autótöltővel
- a nappaliból nyíló több, mint 40 m2 alapterületű terasz, mely szintén Brustor lamellás fedést kapott
- a fedett terasz és a járda alatt elektromos szőnyeg, hogy fűthető legyen a téli csúszásmentességért
- két helyiségből álló kerti épület a tárolás kedvéért, ahol az egyik helyiség fűthető, így akár irodaként is funkcionálhat
- 3x40A áramerősség

Ideális választás azok számára, akik szeretik a zöld környezetet, a modern megoldásokat és az alacsony fenntartási költséget.

Sok az eladó ház, de az igazi élhető OTTHON kevés! Ez pedig egy pont OLYAN!

További információkért és megtekintésért keressen bizalommal! Igény szerint külső fotókat, további képeket tudok küldeni.
(A hirdetésben szereplő adatok a tulajdonostól kapott információk alapján kerültek rögzítésre.)

Még valami, ha a környéket nem ismerné:
Máriaremete Budapest városrésze a II. kerületben, a Duna jobb partján, Budán fekszik és kiváló infrastruktúrával bír.
A környéken szinte minden megtalálható, ami a hétköznapi élethez szükséges: változatos profilú boltok, kormányablak, orvosi és fogorvosi rendelők, gyógyszertár, bank és posta, mosoda, játszóház. kutyaiskola, kertészet, éttermek, kávézók, üzletházak.
Szabadidős, sportolási lehetőségek: Gyarmati Dezső Uszoda, teniszpályák, sportpályák, játszóterek, kirándulási lehetőségek (János-hegyi Erzsébet kilátó, Hárs-hegyi kilátók, Árpád-kilátó, Nagy Szénás-kilátó, számtalan kijelölt turista útvonal a Budai Parkerdőben, Remete-szurdok)
A Klebersberg Kuno Művelődési Központ koncertek, kulturális – és gyerekprogramok méltó színhelye.
Több oktatási intézmény található a környéken: magánóvodák, Waldorf Óvoda és Iskola, Klebersberg Kuno Általános Iskola és Gimnázium, Máriaremetei úti Általános Iskola, Ökumenikus Iskola, Amerikai Nemzetközi Iskola (AISB), Gustave Eiffel Francia Óvoda Általános Iskola és Gimnázium.

Unger-Takács Anikó
PRÉMIUM

Unger-Takács Anikó

9 éve a Városi Ingatlaniroda tagja
Régióigazgató
Győr
+36 (70) 235 7733
Észrevétel a hirdetéssel kapcsolatban
Egy ingatlanos naplója