Igényes otthon akár 2 generáció részére!

6836 Nyomtatás Ajánlás Facebook

Eladásra kínálok Lajosmizse csendes, nyugodt városrészén egy 2 generáció lakhatására is tökéletesen alkalmas családi házat.

Az ingatlan 2007-ben épült beton alapon vegyes falazattal, cserép fedéssel.

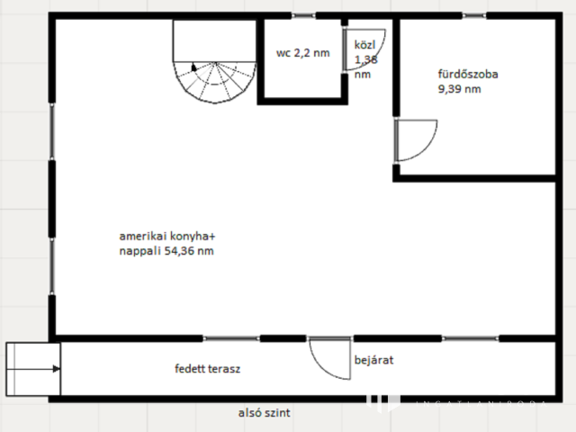
Összetétele: az alsó szinten: külön fürdőszoba és wc, közlekedő, amerikai konyhás nappali.
Felső szinten: 4 szoba, nappali.
A telken helyet kapott még egy külön álló lakrész amiben konyha, fürdőszoba és 1 szoba található.

A nagy ház alatt pince és kazánház lett kialakítva.

Közművek közül villannyal rendelkezik (éjszakai áram is).
A víz ellátás kristálytiszta, hivatalosan bevizsgált fúrt kútról megoldott.
A szennyvízelvezetés emésztővel történik.

Gáz a szomszéd telken már bekötésre került.

A fűtés vegyes tüzelésű kazánnal,radiátorokkal megoldott, de van lehetőség klíma használatára is.

A telek területe 4392 négyzetméter, teljesen körbekerített,2 részre van tagolva.Az első rész szépen parkosított,a második rész állattartásra és mezőgazdaságra is kiválóan alkalmas.

10 perc séta közelben: iskola, óvoda,bölcsőde, buszmegálló, orvosi rendelő, bevásárlási lehetőségek, városközpont.

Tökéletes területi elhelyezkedésének köszönhetően az M5 autópályán Budapest 35, Kecskemét 10 perc alatt megközelíthető.

Amennyiben felkeltettem érdeklődését hívjon bizalommal akár hétvégén is!
06306561062
Mónika

Urbán Mónika
PRÉMIUM

Urbán Mónika

7 éve a Városi Ingatlaniroda tagja
Ingatlanértékesítő
Kecskemét
+36 (30) 656 1062
Észrevétel a hirdetéssel kapcsolatban
Egy ingatlanos naplója