Hatalmas polgári ház és gazdasági terület

29884 Nyomtatás Ajánlás Facebook

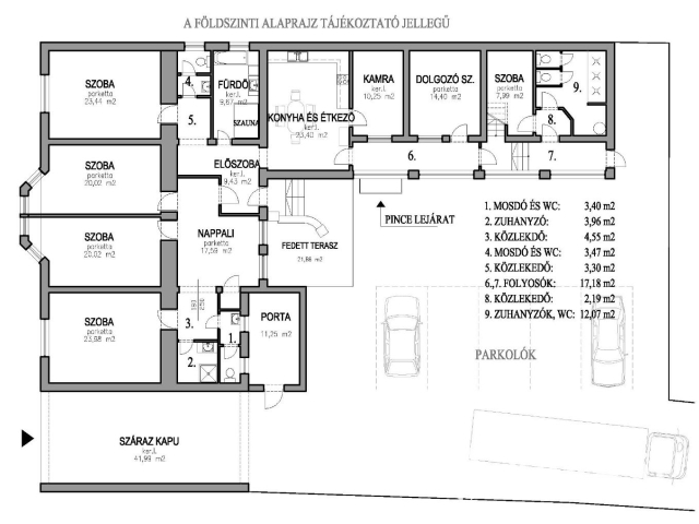
Ritka lehetőség, hogy a város belterületén eladó egy 1578 m2 -es telek ipari területtel és polgári házzal. Az 1900-as évek elején épült tégla épület lakórésze 316,70 m2 területű. A főépület alatt található ~ 50 m2 alapterületű, két helyiségből álló pince add helyet a központi fűtést ellátó fatüzelésű kazánnak is. A főépület portája mögött található a fedett grillező terasz, innen léphetünk be a több mint 3 m belmagasságú polgári házba. A földszinten 4 db 20 m2 -nél nagyobb szoba, nappali, étkező és konyha, dolgozó szoba, zuhanyzó, fürdő , két külön wc, valamint a szauna található. A hátsó folyosóról közelíthető meg a félemeleti szoba, illetve a tetőtérben lévő 3 szoba is.
A telek hátsó részében helyezkednek el az 1980-as években épült tégla szerkezetű, jelenleg raktárépületként funkcionáló helyiségek, egy 40 m2 alapterületű garzon lakás, porta épület, és 116 m2 fedett, burkolt tároló.

Néhány adat az ingatlanról ami segíthet a döntésben:

- 1578 m2 telek, Lk. 0.2.5.9. besorolású ( Kisvárosias lakóterület, 50% beépíthető )
- főépület földszinti lakótér : 242,00 m2
- emeleti beépítés: 54,70 m2 ,
- félszinten található szoba: 20,00 m2
- fedett terasz: 21,86 m2
- központi fűtés, radiátorokkal az egész lakóépület területén, fatüzelésű kazán.
- utcafronton új fa hőszigetelő nyílászárók
- gazdasági épületek: 236 m2
- garzon lakás: 40 m2
- fedett tárolók: 116 m2

Az ingatlannal kapcsolatos kérdéseivel várom hívását, a hét bármely napján.

Ügyfeleink számára irodánk teljes jogi hátteret, adás-vétellel kapcsolatos térítésmentes jogi tanácsadást biztosít.
Bank semleges hitelügyintézéssel, díjmentes hitelszűréssel és tanácsadással is hozzájárulunk, hogy megtalálja az ön számára legkedvezőbb megoldást.

Sárai-Kovács Ágnes
PRÉMIUM

Sárai-Kovács Ágnes

5 éve a Városi Ingatlaniroda tagja
Ingatlanértékesítő
Hódmezővásárhely
+36 (30) 742 5020
Észrevétel a hirdetéssel kapcsolatban
Egy ingatlanos naplója