Egyházashollós házalap készen 120m2 közművekkel telek1800m2

2058 Nyomtatás Ajánlás Facebook

Eladó Alap Szerkezetkész Családi Ház Egyházashollóson – Kiváló Befektetési Lehetőség!

Álmodja meg saját otthonát ebben a csendes, zöld övezetben található, szerkezetkész állapotú ingatlanban, amely tökéletes lehetőséget kínál azok számára, akik szeretnék saját ízlésükre szabni új otthonukat!

Főbb jellemzők:
- Helyszín: Egyházashollós, csendes utca, zsákutca, mégis kiváló közlekedéssel.
- Telekméret: 1800 m² - rengeteg hely a kertészkedésre vagy akár egy medence építésére.
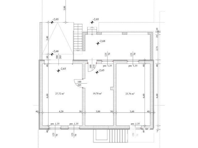
- Lakótér:120 m², két szintes épület, terasszal, amely bőven biztosít helyet az egész család számára.
- Helyiségek: 3 tágas szoba, 1 kényelmes nappali, külön fürdő és WC, valamint egy tágas pince szint, garázzsal.
- Különleges jellemzők: Tágas terasz, amely kiváló helyszín nyári pihenéshez vagy baráti összejövetelekhez.
- Gépjármű parkolási lehetőség: Udvari gépjárműbeálló és garázs kialakításának lehetősége.
- Közművek: Háromfázisú áram biztosított. víz, csatorna. Napelemek bekötésének előkészítése.

Ez a szerkezetkész ingatlan ideális választás azoknak, akik szeretnének egy saját elképzeléseik szerint kialakított otthont létrehozni, mindezt egy nyugodt, természetközeli környezetben, ahol a telek végében kis patak folydogál medrében. Az ingatlan elhelyezkedése remek lehetőségeket kínál a mindennapi közlekedésre, bevásárlásra, gyermekek nevelésére ,orvos stb. ellátásra is.

Ne hagyja ki ezt a kivételes lehetőséget, hogy egy saját igényei szerint alakítható ingatlan boldog tulajdonosa legyen! Vegye fel velünk a kapcsolatot további információkért és megtekintésért.

Éljen a lehetőséggel, és valósítsa meg álmai otthonát Egyházashollóson! +36707775138

Ready-to-build Family House for Sale in Egyházashollós - Excellent Investment Opportunity!

Dream of your own home in this ready-to-build property located in a quiet, green area, which offers the perfect opportunity for those who want to customize their new home to their own taste!

Main features:
- Location: Egyházashollós, quiet street, dead end, yet with excellent transport.
- Plot size: 1800 m² - plenty of space for gardening or even building a swimming pool.
- Living space: 120 m², two-story building with a terrace, which provides plenty of space for the whole family.
- Rooms: 3 spacious rooms, 1 comfortable living room, separate bathroom and toilet, as well as a spacious basement level, garage.
- Special features: Spacious terrace, which is an excellent place for summer relaxation or gatherings with friends.
- Vehicle parking: Possibility of building a courtyard carport and garage.
- Utilities: Three-phase electricity provided. Water, sewer. Preparation for connecting solar panels.

This ready-to-build property is an ideal choice for those who want to create a home designed according to their own ideas, all in a quiet, natural environment, where a small stream flows in its bed at the end of the plot. The location of the property offers great opportunities for everyday transportation, shopping, raising children, medical care, etc.

Do not miss this exceptional opportunity to become the happy owner of a property that can be designed according to your own needs! Contact us for further information and viewing.

Take advantage of the opportunity and make your dream home a reality in Egyházashollós! +36707775138

Tóth Mihály

Tóth Mihály

6 éve a Városi Ingatlaniroda tagja
Ingatlanértékesítő
Körmend
+36 (70) 777 5138
Észrevétel a hirdetéssel kapcsolatban
Egy ingatlanos naplója