Debrecen, Júliatelepen saját hrsz.-ú családi házak

4556 Nyomtatás Ajánlás Facebook

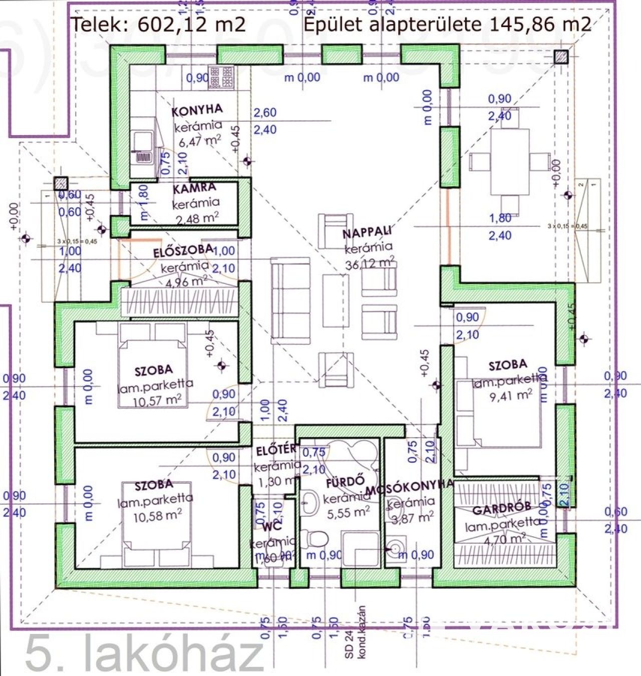
Debrecenben-Júliatelep csendes, kertvárosi utcájában, 2025. év végi és 2026. év elejei tervezett átadással, hat önálló, külön helyrajzi számmal rendelkező, egyszintes, duplakomfortos, energiatakarékos családi ház épül. Az ingatlanok önálló telken helyezkednek el és a modern kor elvárásainak megfelelő, magas műszaki tartalommal készülnek, maximális kényelmet és funkcionalitást biztosítva.
A a 601 m²-es telken. épülő házak már leköthetőek, a nappali + 3 szobás garázs nélküli kivitelben.

A telek és a ház főbb műszaki paraméterei, jellemzői:
- az ingatlanok összközművesek (víz, gáz, villany, csatorna)
- minden telek önálló helyrajzi számmal rendelkezik, körbe lesz kerítve
- a falazat Porotherm 30 N+F téglából készül, 15 cm-es külső és 12 cm-es lábazati szigeteléssel ellátva
- a tető Bramac betoncseréppel fedett.
- a padló 12 cm, a fafödém 30 cm szigetelést kap.
- műanyag nyílászárók, 5 légkamrás, barna színben, 3 rétegű üvegezéssel,
dekorfóliás beltéri ajtók
- az ingatlan fűtése hőszivattyúval megoldott, a hőleadás padlófűtéssel kialakított. A fürdőszobákban törölközőszárító kerül beszerelésre
- 3 fázisú elektromos áram
- a nappali, a hálószobák, a közlekedő 9 mm-es laminált parkettával burkoltak, a többi helyiség járólappal burkolt
- 2 db hűtő-fűtő klímaberendezéssel klimatizált
- szekcionált, hőszigetelt, elektromosan vezérelt garázsajtó
- a ház körüli járda 1 méter szélességben, garázs bejárat előtt 7X3 méter, bejárat 7X1 méter szélességben kerül térkövezésre
- az utcafronti kerítés zsalukőből, oszlopos kivitelben, vakolva és színezve, festett, gyalult deszka betétekkel, elektromosan vezérelt automatikával, kaputelefonnal
- elektromosan vezérelt nagykapu
- két lakóegységet elválasztó kerítés: beton lábazat lemez felsőrésszel
- riasztórendszer előkészítése egységek nélkül
- módosítható belső válaszfalak, választható belső hideg- melegburkolatok, szaniterek.

Környék, közlekedés:
Csendes, kertvárosi, aszfaltozott utcában helyezkedik el, gépkocsival és autóbusz közlekedéssel egyaránt jól megközelíthető.
Amennyiben kényelmes, energiatakarékos, tetszetősen kialakított kertes családi házra vágyik a családjával egy csendes, kertvárosi környezetben, akkor a részletesebb információkért hívjon bizalommal!

Lisztes Mihály

Lisztes Mihály

1 éve a Városi Ingatlaniroda tagja
Ingatlanértékesítő
Debrecen
+36 (30) 207 9660
Észrevétel a hirdetéssel kapcsolatban
Egy ingatlanos naplója