Debrecen-Józsán 3 szoba nappalis Amerikai típusú ház eladó!

5733 Nyomtatás Ajánlás Facebook

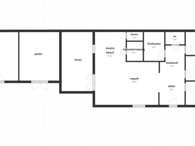
Eladó családi ház, Debrecen egyik kedvelt városrészén, Józsán!

Ez a tökéletes állapotban lévő, 130 m²-es lakótérrel rendelkező otthon várja új lakóit. A házat egy 768 m²-es, gondosan parkosított telken találjuk, amely csendes utcában helyezkedik el, mégis kiváló közlekedéssel és a belváros közelségével büszkélkedhet.

Az ingatlan három szobából, egy világos nappaliból, valamint egy külön fürdőszoba és WC-ből áll, tovább növelve a kényelmet. Az amerikai konyhás kialakítás pedig modern életviteli lehetőségeket biztosít. A padlófűtés, és a külső hőszigetelés hozzájárulnak az alacsony fenntartási költségekhez.

A kertben terasz, kerti grillezőhely, valamint fúrt kút és hidrofor is rendelkezésre áll. A kertvilágítás és a melléképület további kényelmi funkciókat kínálnak. A zöld övezet nyugalmat áraszt, a szerelőakna pedig praktikus megoldást jelent az autószereléshez.

A dupla garázs mellett udvari gépjárműbeálló is rendelkezésre áll, így bőven van hely a parkolásra. A ház kertkapcsolattal is rendelkezik, mely ideális a természet közelségét kedvelők számára. Az ingatlan saját tárolóval és háromfázisú árammal felszerelt.

Ne hagyja ki ezt a kivételes lehetőséget, hogy egy ilyen remek házban éljen! További információért vagy megtekintésért keressen bizalommal!

Tripsó Tibor
PRÉMIUM

Tripsó Tibor

10 éve a Városi Ingatlaniroda tagja
Ingatlanértékesítő
Debrecen
+36 (30) 942 5373
Észrevétel a hirdetéssel kapcsolatban
Egy ingatlanos naplója