Debrecen csendes kertvárosi részén ELADÓ IKERHÁZ

121 Nyomtatás Ajánlás Facebook

* Eladó új építésű ikerház Debrecen kedvelt, csendes részén – Fészek lakóparkban*
Szeretne egy modern, energiatakarékos otthont nyugodt környezetben, mégis jó elérhetőséggel? Most megtalálta!

Debrecen egyik dinamikusan fejlődő, kertvárosias övezetében, kínálunk megvételre megbízható, referenciákkal rendelkező kivitelezőtől, 1 db új építésű korszerű ikerházat, amely egy 4 lakásos ikerház részét képezik.

Az átadás várható időpontja: 2027. tavasz

*Főbb jellemzők:

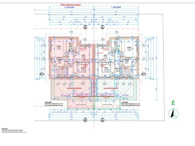
-Lakótér: 144.8 m²
-Telekterület: 229 m2 ( kert: 112 m2)
-Konyha+étkező+ nappali
- 3 hálószoba
- fürdőszoba + külön WC
-Gardrób + háztartási helyiség
-Saját garázs, amely benne van az árban!

* Műszaki tartalom:
-Tégla építésű, vasbeton szerkezet
-12 cm homlokzati hőszigetelés
-Egyedi kondenzációs gázkazán
-Teljes padlófűtés a maximális komfortért
-hűtő-fűtő klíma
-Korszerű, alacsony fenntartási költség

*Kiemelkedő extrák:
-Parkosított, privát kert – ideális pihenéshez és családi programokhoz
-Tágas terasz
-Elektromos garázskapu
-Redőnyözött nyílászárók
-Hűtő-fűtő / klímaberendezés


📍 Elhelyezkedés:
A Fészek lakópark csendes, családbarát környezetet biztosít, miközben Debrecen fontos pontjai könnyen és gyorsan elérhetők.

💬 Miért érdemes ezt választani?
✔ Új építés – nincs felújítási gond
✔ Modern technológia, alacsony rezsi
✔ Saját kert és garázs
✔ Nyugodt, élhető környezet

📞 Ne maradjon le róla, keressen bizalommal további információért!
Az ingatlanok megtekinthetők előzetes időpont egyeztetéssel.
Nemes Gabriella +36-70-406-6880

* Newly built semi-detached house for sale in a popular, quiet part of Debrecen – Fészek residential park*
Would you like a modern, energy-efficient home in a peaceful environment, yet with good accessibility? You've found it now!

In one of the dynamically developing, garden suburb areas of Debrecen, we offer for sale from a reliable, well-established contractor, 1 newly built modern semi-detached house, which is part of a 4-apartment semi-detached house.

Expected handover date: spring 2027

*Main features:

-Living space: 144.8 m²
-Plot area: 229 m2 (garden: 112 m2)
-Kitchen + dining room + living room
- 3 bedrooms
- bathroom + separate toilet
-Wardrobe + utility room
-Own garage, which is included in the price!

* Technical content:
-Brick-built, reinforced concrete structure
-12 cm facade insulation
-Individual condensing gas boiler
-Full underfloor heating for maximum comfort
-cooling-heating air conditioning
-Modern, low maintenance costs

*Outstanding extras:
-Landscaped, private garden - ideal for relaxation and family programs
-Spacious terrace
-Electric garage door
-Shuttered windows
-Cooling-heating / air conditioning

📍 Location:
The Fészek residential park provides a quiet, family-friendly environment, while the important points of Debrecen are easily and quickly accessible.

💬 Why choose this?
✔ New construction - no renovation problems
✔ Modern technology, low overheads
✔ Own garden and garage
✔ Calm, livable environment

📞 Don't miss out, contact us for more information!
The properties can be viewed by prior appointment.
Gabriella Nemes +36-70-406-6880

Nemes Gabriella

Nemes Gabriella

Ingatlanértékesítő
Debrecen
+36 (70) 406 6880
Észrevétel a hirdetéssel kapcsolatban
Egy ingatlanos naplója